
Aplicações gerais
O granulador de leito fluido é um novo tipo de equipamento que combina uma tecnologia de borrifação e revestimento de leito fluido juntos. Como resultado, ele consegue atingir um revestimento uniforme e contínuo da superfície do produto.
O granulador de leito fluido é amplamente usado em revestimento em pó, granulos, e material embalado em pastilhas, revestimento de filme de controle de liberação lenta, revestimento de controle matriz de liberação lenta, revestimento à prova de umidade e muito mais.
Características do granulador de leito fluido
1. O granulador de leito fluído pode ser usado para coloração, mascaramento de sabor, resistência à umidade, anti-oxidação, isolamento térmico, e separação de revestimento para pó, grânulos, e matérias-primas embaladas em pastilhas.
2. Possui uma excelente dispersão de produtos, garantindo a não adesão dos mesmos.
3. Uma pequena distância para movimentação da secagem por spray sem perda de material de revestimento contribui para um menor custo de produção.
4. O centrum invertido para desaceleração e tubos de arco médio para aceleração torna possível o revestimento de micro-grânulos, pequenos e grandes grânulos, e micro materiais embalados em pastilhas.
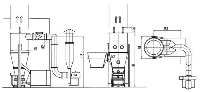
Parâmetros técnicos do granulador de leito fluido
| Item | 3 | 5 | 15 | 30 | 60 | 120 | 200 | |
| Capacidade | Kg/carga | 1.5-4.5 | 4-6 | 10-20 | 25-40 | 40-80 | 80-150 | 150-250 |
| Volume de container | L | 10 | 16 | 50 | 100 | 210 | 410 | 660 |
| Energia do ventilador | kW | 3 | 4 | 5.5 | 7.5 | 15 | 18.5 | 22 |
| Consumo de ar comprimido | m3/min | 0.25 | 0.35 | 0.6 | 0.85 | 1.1 | 1.6 | 2.2 |
| Consumo de vapor | Kg/h | Elétrico 8 kW | 50 | 65 | 90 | 180 | 280 | 350 |
| Tamanho para referência | H1(mm) | 1950 | 2360 | 2850 | 3120 | 3220 | 3450 | 3660 |
| H2(mm) | 310 | 310 | 340 | 340 | 490 | 590 | 690 | |
| H3(mm) | 1750 | 2030 | 2530 | 2800 | 2900 | 3130 | 3350 | |
| φ1 | 400 | 550 | 700 | 1000 | 1200 | 1600 | 1800 | |
| φ2 | 150 | 180 | 250 | 250 | 280 | 280 | 315 | |
| B1(mm) | 660 | 1050 | 1160 | 1460 | 1660 | 2060 | 2260 | |
| B2(mm) | 1200 | 1650 | 1860 | 2460 | 2860 | 3660 | 4060 | |
| B3(mm) | 880 | 950 | 1400 | 1500 | 1600 | 1800 | 2000 | |

